开封古城四厢二十坊布局介绍

时间:2022-11-14 来源: 开封文投集团 浏览量:0

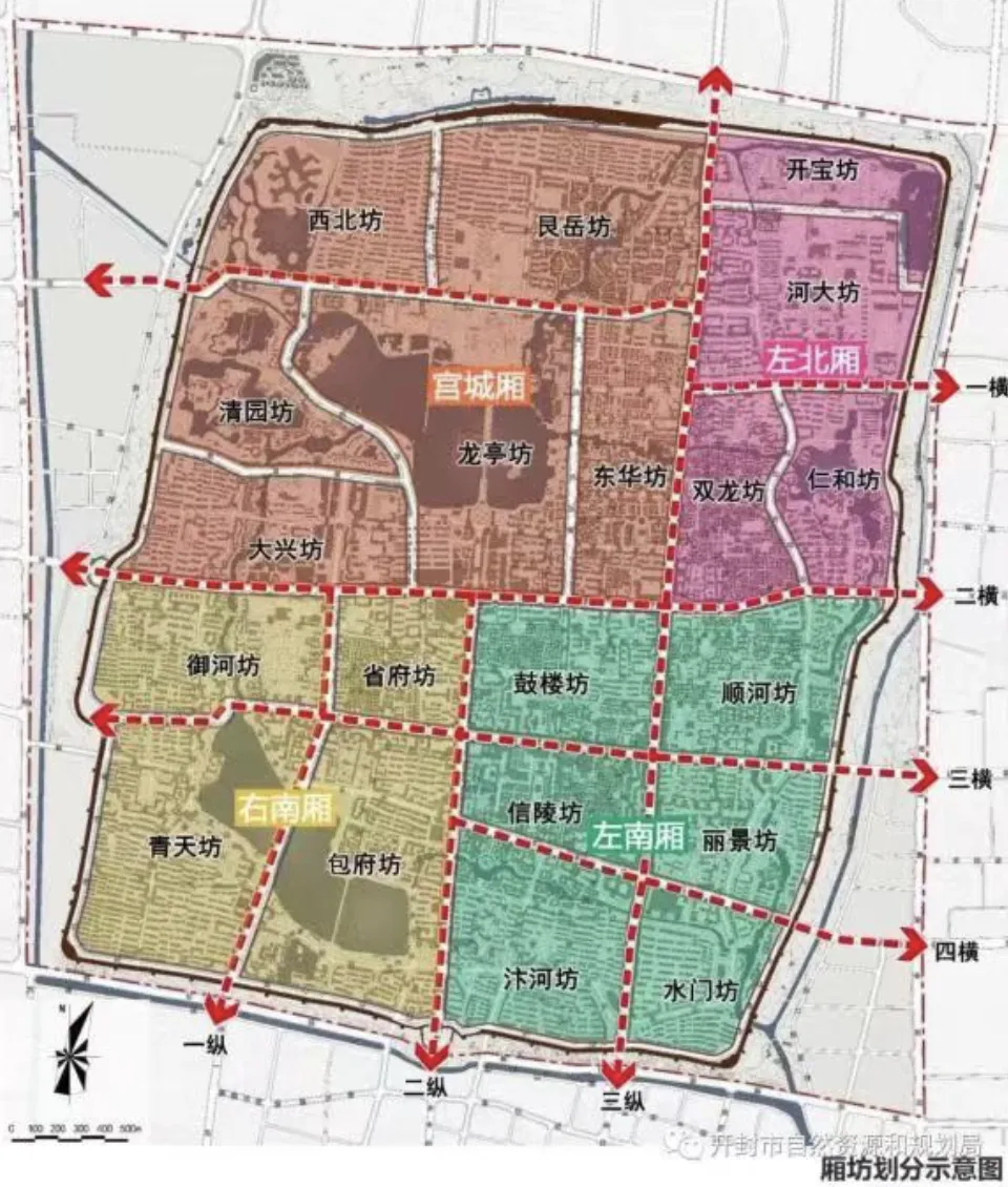
开封市在宋都古城项目更新实施过程中,深入贯彻落实以人为核心的新型城镇化战略,始终以坚持绿色、生态、宜居和人文的新型文化街区为目的,具体实施以《开封宋都古城保护与修缮规划》为指导,围绕“四厢二十坊”规划设计,采取“保护、保留、修缮、更新”四种模式,以保护传承、优化改造为主,最大限度地保留利用既有建筑、保持老城格局尺度、延续城市特色风貌。

image.png

立即购票