文投未来智慧城

时间:2022-03-17 来源: 开封文投集团 浏览量:0


1.jpg

2.png

3.png4.png

6.png

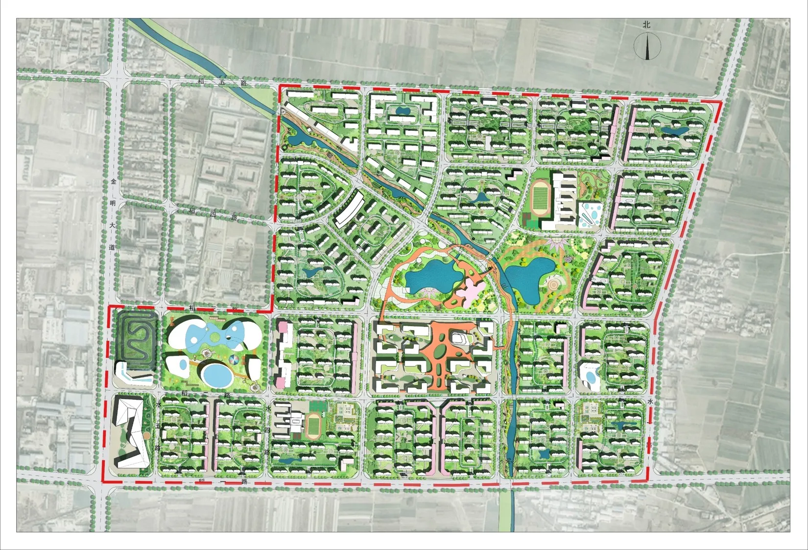
项目位置:位于开封市市区西北部——黄河之畔。

规划内容:区域首期178亩土地已批,为反哺老城区文旅项目发展,初步建议将3000亩项目以新时代万物智联为基础,打造高品质智慧住区、智慧商业、智慧运动等多元共生的现代化居住新城。

项目优势:文投未来智慧城位于开封市市区西北部——黄河之畔,总占地面积约3000亩,是开封市重点发展区域之一,项目区位优越,距高速收费站仅1.5公里、开封北站3.9公里,交通便利,发展潜力巨大。

立即购票